Small cosy holiday cottage in Pickering - with 1 bedroom
Barn Cottage - UK49959, Pickering, Yorkshire, YO18 8LL.Very good quality self-catering
Sorry no pets
Bedrooms - 1
Bathrooms - 1
Sleeps 2.























Barn Cottage - UK49959
Barn Cottage at Keld Head Farm in Pickering offers a peaceful countryside escape at the gateway to the North York Moors National Park, making it the perfect base for exploring this stunning region.
Accommodation details
1 step to entrance.
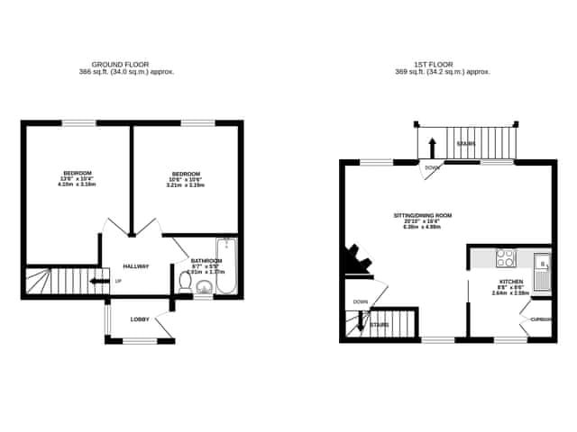
Ground Floor:
Bedroom 1: Double (4ft 6in) Bed
Bedroom 2: 2 x Single (3ft) Beds
Bathroom: Bath With Shower Over, Toilet
First Floor:
Living room: Freeview TVElectric Oven, Electric Hob, Microwave, Fridge/Freezer. Gas central heating, electricity, bed linen, towels and Wi-Fi included. Travel cot and highchair available on request. External utlity room with washing machines and tumble dryers (shared with other properties on-site). Grounds with courtyard, summerhouse, barbecue and garden furniture (shared with other properties on-site). Children’s play area (shared with other properties on-site). Private parking for 2 cars. No smoking.
Welcome to Keld Head Farm Cottages, these charming countryside retreats are nestled on the edge of the North York Moors.
Surrounded by open fields where sheep and cows graze, these delightful stone-built cottages offer a peaceful escape into nature with the convenience of nearby attractions. Barn Cottage is a charming two-storey retreat set around a peaceful courtyard with countryside views and an upside down layout. On the ground floor, you’ll find two cosy bedrooms—one with a king-size bed and the other with twin beds—ideal for families or couples. The family bathroom features a bath with a shower over. Upstairs, a spacious open-plan living and dining room with rustic beams and a stone fireplace opens out to a serene dining area—perfect for relaxing to the sounds of the fountain.
Rainy day? No problem—guests can enjoy the well-stocked board game, book and DVD library. The well-equipped kitchen ensures you have everything needed for a comfortable and enjoyable stay. From your doorstep, enjoy scenic walks through gently swaying barley fields, alongside flowing rivers, and into tranquil woodlands. Just a 15-minute stroll away lies the historic market town of Pickering, home to the famous North Yorkshire Moors Railway, Pickering Castle, and the beautifully preserved 15th-century wall paintings in St. Peter & St. Paul’s Church. The town also offers a variety of local shops, cosy pubs, and inviting cafés. For those wishing to explore further afield, the North York Moors National Park is only a ten-minute drive, offering breathtaking landscapes and countless walking and cycling trails.
The stunning coastal towns of Whitby, Scarborough, and the historic city of York are all within a 40-minute drive, perfect for day trips. Back at the cottages, families and groups will love the large enclosed lawned garden, complete with a BBQ area, garden house, grass maze, football and badminton nets, and a children’s play area and an outdoor toy shed. Keld Head Farm Cottages provide a perfect mix of rural charm, family-friendly fun, and excellent access to Yorkshire’s best-loved destinations.
These properties can be booked together to accommodate up to 44 guests.
Self-catering features
- Barbecue
- Dishwasher
- Fuel and Power Included
- Pub within 1 mile
- Television
- Decorated at Christmas
- WiFi
- Bed Linen & Towels Included
- Short Breaks All Year
- Cot Available
- Washing Machine
- Pets – not allowed
- Cottages4you
- Parking - On Site
- Childrens Play Area
- Last Minute Breaks
- Station within 1 mile
- Essentials